Nagylakos Ingatlanok Kft.

KAPCSOLAT
Kirsch Gábor


+36 20 326

k.gabor@

Az időpont kérés naptár ikonja
IDŐPONTOT KÉREK
A visszahívás kérés telefon ikonja egy azt körbe ölelő nyíllal
VISSZAHÍVÁST KÉREK
Ajánlom egy ismerősömnek ikon
AJÁNLOM EGY ISMERŐSÖMNEK
Facebook megosztás ikon
MEGOSZTÁS

KAPCSOLATFELVÉTEL

Küldés

Az üzenetet sikeresen elküldtük!
Hiba történt!
INGATLAN ADATAI

Ingatlan jellege

téglalakás

Belső terület

77 m²

Tájolás

északnyugat

Építési állapot

használt

Építési mód

tégla

Szobák száma

3 szoba

Szobák elhelyezkedése

külön nyílik min. 2 szoba

Erkély

4 m²

Emelet

magasföldszint.

Épület szintje

3.

Épült

kb. 1930

Lift

van

Ingatlan állapot

kívül: jó
belül: felújítandó

Klíma

van

Szigetelés

10 cm

Ablak szerkezete

hagyományos

Fűtés

központi egyedi méréssel

Komfort

összkomfort

Parkolás

van fedetlen felszíni beálló

Energetika

nincs megadva

Az időpont kérés naptár ikonja
HTML
Az időpont kérés naptár ikonja
PDF
Eladó téglalakás
Ingatlan azonosító:
7944_webing2

Budapest, XIV. kerület, Istvánmező

Irányár

77 M Ft
(1 M Ft/㎡)

Szobák

3 szoba

Emelet

magasföldszint

Terület

77 m²
INGATLAN LEÍRÁSA
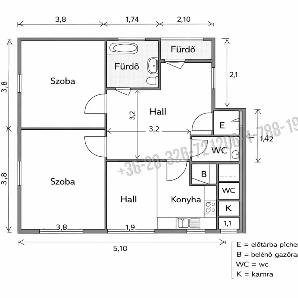
Kertre néző, nagypolgári hangulatú lakás Budapest XIV. kerületében

Ez a 77 négyzetméteres, kertre néző lakás Zugló központi részén, a Thököly úton vár rád.
A három szobás elrendezés jó térkihasználással és Kelet- Északnyugati tájolással rendelkezik, így reggel, és délután süt be a nap.
A lakás felújítandó, de jó alap, hogy saját ízlésed szerint alakíthasd.
A helyiségek a központi hallból nyílnak.
A fürdő és WC külön, vagy egyben is használható, praktikus megoldás.
Parkolás az udvarban beállóval megoldható.

Főbb jellemzők:
- Tégla építésű, 1950 előtt épült ház
- 77 m2, 3 szoba, erkély
- Felújítandó állapot
- Parkolási lehetőség udvari beállóban
- tájolás: északnyugat

Ezt a lakást azoknak ajánlom, akik szeretik a nyugodt, jó térkihasználású otthonokat, és szívesen alakítják saját ízlésük szerint. Ideális lehetőség, ha szereted a kertre néző kilátást, a nagypolgári hangulatot és fontos neked a jó tömegközlekedés.

Gyere, nézd meg, és képzeld el, milyen lehet itt az új életed!

INGATLAN ADATAI

Ingatlan jellege
téglalakás
Belső terület
77 m²
Tájolás
északnyugat
Építési állapot
használt
Építési mód
tégla
Szobák száma
3 szoba
Szobák elhelyezkedése
külön nyílik min. 2 szoba
Erkély
4 m²
Emelet
magasföldszint.
Épület szintje
3.
Épült
kb. 1930
Lift
van
Ingatlan állapot
kívül: jó
belül: felújítandó
Klíma
van
Szigetelés
10 cm
Ablak szerkezete
hagyományos
Fűtés
központi egyedi méréssel
Komfort
összkomfort
Parkolás
van fedetlen felszíni beálló
Energetika
nincs megadva
TÉRKÉP

Budapest, XIV. kerület, Istvánmező

Hitelkalkulátor


KAPCSOLAT
Kirsch Gábor
Kirsch Gábor


+36 20 326 7212

k.gabor@lcpartner.hu

KAPCSOLAT
Kirsch Gábor

+36 20 326

k.gabor@

Az időpont kérés naptár ikonja
IDŐPONTOT KÉREK
A visszahívás kérés telefon ikonja egy azt körbe ölelő nyíllal
VISSZAHÍVÁST KÉREK
Ajánlom egy ismerősömnek ikon
AJÁNLOM EGY ISMERŐSÖMNEK
Facebook megosztás ikon
MEGOSZTÁS

KAPCSOLATFELVÉTEL

Küldés

Az üzenetet sikeresen elküldtük!
Hiba történt!
INGATLAN ADATAI

Ingatlan jellege

téglalakás

Belső terület

77 m²

Tájolás

északnyugat

Építési állapot

használt

Építési mód

tégla

Szobák száma

3 szoba

Szobák elhelyezkedése

külön nyílik min. 2 szoba

Erkély

4 m²

Emelet

magasföldszint.

Épület szintje

3.

Épült

kb. 1930

Lift

van

Ingatlan állapot

kívül: jó
belül: felújítandó

Klíma

van

Szigetelés

10 cm

Ablak szerkezete

hagyományos

Fűtés

központi egyedi méréssel

Komfort

összkomfort

Parkolás

van fedetlen felszíni beálló

Energetika

nincs megadva

Az időpont kérés naptár ikonja
HTML
Az időpont kérés naptár ikonja
PDF
Budapest, XIV. kerület - Istvánmező
Budapest, XIV. kerület - Istvánmező
Budapest, XIV. kerület - Istvánmező
Budapest, XIV. kerület - Istvánmező
Budapest, XIV. kerület - Istvánmező
Budapest, XIV. kerület - Istvánmező
Budapest, XIV. kerület - Istvánmező